Retour aux résultats
Cathy LECHEVALLIER
Cathy LECHEVALLIER de 1894 vous présente

Appartement 3/4 P de type Haussmannien-Charme et volumes au cœur du centre historique de Hyères

Retour aux résultats
Appartement à vendre.
Hyères 83400
299 000 €Honoraires à la charge du vendeur
2 chambres
1 salle de bains
Surface de 113 m2
Référence de l’annonce 15194
Description du bien.
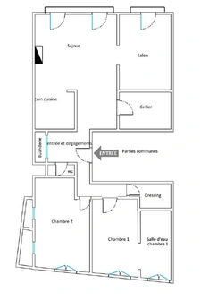
1894 - L'immobilier vous propose au premier étage d'une petite copropriété, au cœur du centre historique de Hyères, ce superbe appartement de type Haussmannien de 113 m² allie volumes généreux, charme de l'ancien et confort moderne, avec une rénovation entièrement réalisée avec goût et attention aux détails.
La pièce de vie offre de beaux volumes et confort : elle réunit la cuisine équipée avec îlot central, un espace repas convivial et un bel espace salon de presque 15 m², parfait pour se détendre ou recevoir, avec 3 balconnets apportant lumière aux pièces.
Le coin nuit se compose de deux belles chambres, chacune avec sa salle d'eau privative, l'une avec douche et l'autre avec baignoire, l'appartement bénéficie également d'un dressing pour un rangement optimal.
Pour compléter, vous trouverez un espace polyvalent de 7m², parfait pour le rangement, un bureau ou tout autre utilisation selon vos besoins. Une grande entrée, un WC indépendant, et un espace buanderie.

L''ensemble de l'appartement a été rénové, plomberie, électricité, double vitrage, isolation phonique au plafond, climatisation, et adoucisseur d'eau.
Rare sur le secteur, ce bien séduira les amateurs de volumes généreux.
Un parking avec abonnement est disponible à proximité.

Honoraires à charge vendeur.
Contact Cathy LECHEVALLIER - EI: 0680186906
Agent commercial en immobilier enregistré au RSAC du greffe de Nice sous le n° 911317907 titulaire de la carte de démarchage immobilier pour le compte de la société 1894-L'immobilier.
La présente annonce a été rédigée sous la responsabilité éditoriale de l’agent commercial en contact.
Selon l'article L.561.5 du Code Monétaire et Financier, pour l'organisation de la visite, la présentation d'une pièce d'identité vous sera demandée.
Cathy LECHEVALLIER
Cathy LECHEVALLIER.
Agent 1894 en charge du bien
Caractéristiques du bien.
Détails
  • Nombre pièces : 3
  • Surface : 113 m2
  • Chambres : 2
  • Salle(s) de bains : 1
Ce bien fait parti d'une co-propriété de 3 lots. Les charges sont de 2000€ par an. Aucune procédure.
Bilan énergétique.
DPE_ passoire énergétique logement extrêmement performant logement extrêmement peu performant consommation (énergie primaire) 121 kWh/m²/an émissions* 25 kgCO2/m²/an
DPE_ * Dont émissions de gaz à effet de serre peu d'émissions de CO2 émissions de CO2 très importantes 25 kgCO2/m²/an
Aspects financiers
Estimation des coûts annuels d'énergie du logement
Entre 1280 € et 1780 € par an
Montant estimé des dépenses annuelles d’énergie pour un usage standard : sous forme de fourchette avec indication de la fourchette.
Prix moyens des énergies indexés au 1er janvier 2021 (abonnements compris)
Infos complémentaires
Les informations sur les risques auxquels ce bien est exposé sont disponibles sur le site Géorisques : www.georisques.gouv.fr
Cathy LECHEVALLIER
Cathy LECHEVALLIER.
Votre futur chef de projet immobilier 1894
Agent commercial en immobilier(EI) et enregistré au RSAC du greffe de Marseille sous le n°911317907 titulaire de la carte de démarchage immobilier pour le compte de la société 1894-L'immobilier.
Demandez plus d’informations ou programmer une visite.
Les informations recueillies sur ce formulaire sont enregistrées dans un fichier informatisé par 1894 pour gérer votre demande de contact. Elles sont conservées pour la durée nécessaire à la gestion de la relation client dans le respect des prescriptions légales applicables et sont destinées au responsable de la publication de ce site : 1894.
Conformément à la loi « informatique et libertés », vous pouvez exercer votre droit d'accès aux données vous concernant et les faire rectifier en contactant 1894 contact@1894-immo.com ou en utilisant ce formulaire. Nous vous informons de l’existence de la liste d'opposition au démarchage téléphonique « Bloctel », sur laquelle vous pouvez vous inscrire ici : https://www.bloctel.gouv.fr/
Loading...

Actualités du secteur .

Marché, tendances, conseils pratiques… Nos experts décryptent pour vous l’actualité immobilière et partagent des clés concrètes pour mieux acheter, vendre ou valoriser votre bien.

Il y a des villes qui se lisent sur une carte. Aix-en-Provence se lit d’abord en atmosphère : la pierre blonde, les platanes, les terrasses qui vivent...

Lire l'article

Le 5e arrondissement de Marseille n’a pas le luxe facile du front de mer. Il a mieux : la vie réelle, celle qui fait tourner une ville. Un arrondissem...

Lire l'article

Le 6e arrondissement de Marseille a un talent rare : être à la fois central et respirable, élégant et électrique. Ici, on passe d’un boulevard haussma...

Lire l'article
Consulter tous nos articles

Nos agences 1894près de chez vous.

● 1894 L'immobilier Agence Immobiliere - Marseille
Ouvert du lundi au vendredi de 9h à 18h
Nous contacter
● 1894 L'immobilier Agence Immobiliere Aix-en-Provence
Ouvert du lundi au vendredi de 9h à 18h
Nous contacter
● 1894 L'immobilier Agence Immobiliere - La Ciotat
Ouvert du lundi au vendredi de 9h à 18h
Nous contacter
● 1894 L'immobilier Agence Immobiliere - Manduel
Ouvert du lundi au vendredi de 9h à 18h
Nous contacter